Appartement de luxe de 2 chambres à L’Exotique

L'Exotique, Jardin Exotique
Prix sur demande

Perché à l’entrée de Monaco, L’Exotique est l’un des programmes résidentiels les plus récents et les plus prestigieux de la Principauté. Conçu par le célèbre architecte Rudy Ricciotti, ce chef-d’œuvre architectural allie élégance moderne et verdure luxuriante, offrant une expérience de vie unique où le luxe contemporain rencontre la beauté naturelle. L’Exotique se distingue par sa façade ondulée, ses vastes terrasses et ses baies vitrées, permettant aux résidents de profiter d’une vue panoramique à couper le souffle sur la mer Méditerranée, le rocher de Monaco et les toits de la ville. Inspirée par le riche patrimoine botanique de Monaco, la résidence est ornée de jardins tropicaux luxuriants, créant une oasis de sérénité au cœur de la ville.

  • Disposition:
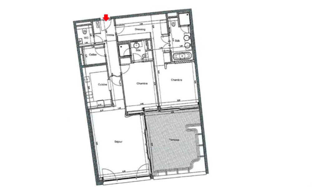
    • Hall d’entrée spacieux
    • Salon lumineux ouvrant sur la terrasse
    • Cuisine séparée et entièrement équipée
    • 2 chambres avec grand espace de rangement
    • 1 salle de bain complète et 1 salle d’eau
    • Toilettes invités
    • Buanderie pratique (cave)
  • Parking : Une place de parking privée
  • Commodités modernes : Climatisation, fenêtres coulissantes et systèmes de sécurité avancés pour la tranquillité d’esprit.
  • Commodités de l’immeuble : piscine intérieure, jardins, salle de sport, hammam et concierge 24h/24 et 7j/7
  • Emplacement exclusif : Situé aux portes de Monaco, L’Exotique est l’un des développements résidentiels les plus récents et les plus prestigieux de la Principauté. Sa position privilégiée offre non seulement une vue à couper le souffle, mais permet également aux résidents de contourner le trafic monégasque pour un accès rapide et facile à l’aéroport, assurant ainsi un confort de voyage sans faille.

Située dans le quartier recherché du Jardin Exotique, cette résidence offre à la fois tranquillité et proximité des attractions animées de Monaco. La région bénéficie d’une végétation luxuriante, d’un accès facile aux commodités locales et d’une vue imprenable sur la Méditerranée.

Informations

Fiche PDF
Réf.
MCE24
Nombre de pièces
3
Chambres
2
Prix
Prix sur demande
Type de transaction
Vente
Type de produit
Appartement
Immeuble
L'Exotique
Quartier
Jardin Exotique
Ville
Monaco
Etat
Neuf
Superf. totale
156 m²
Superf. hab.
125 m²
Superf. terrasse
31 m²
Salles de bain
2
Parkings
1
Caves
1
Date de libération
Now
Vue
Mer, Ville, Ville

Photos du bien

Plan

Localisation